На картеПоказать на карте
фильтр

Продажа квартир, в строящихся домах (недостроенных новостройках), микрорайон имени Г. Т. Шитикова, 0 объявлений в Подмосковье, Мытищах

Сортировка:
По запросу ничего не найдено!
По вашему запросу ничего не найдено!
Установите более мягкие ограничения на значения фильтров.

Похожие объявления:
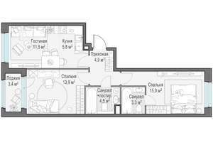
26
27 / 0
28
Как купить квартиру, в строящемся доме, микрорайон имени Г. Т. Шитикова в Подмосковье, Мытищах на сайте Мытищи-недвижимость?

Используя удобную форму поиска с множеством фильтров и сортировкой по параметрам, вы можете подобрать для покупки квартиру, в строящемся доме, микрорайон имени Г. Т. Шитикова в Подмосковье, Мытищах.

Найденные предложения: 0 объявлений, можно посмотреть в виде списка или на карте, с описанием, расположением, ценой и другими подробностями.

Подберите подходящую недвижимость из предложений от собственников, риэлторов, застройщиков и агенств недвижимости, связаться с ними можно по телефону или написать сообщение в любом удобном для вас мессенджере, это безопасно и бесплатно.

Для покупки квартиры доступна ипотека от крупнейших банков России: СберБанк, ВТБ, Альфа-Банк, Россельхозбанк, Совкомбанк, Т-Банк, Росбанк, Почта Банк на сумму от 400 000 до 120 000 000 рублей сроком до 30 лет.

Сайт работает во многих городах России.

Сколько стоит купить квартиру в Подмосковье, Мытищах?

Цена недвижимости: мин. от руб. до макс. руб.

Средняя цена: руб.

Цена за м2: от руб. до руб.

Средняя цена за м2: руб.

Площадь: от м2 до м2

Средняя площадь: м2

↑ НАВЕРХ К МЕНЮ